CASA NUEVA SURFER SKATE A 2 KM DE PUNTA DE LOBOS PRIMERA LINEA SALIDA AL MAR!!!!!OPORTUNIDAD!!!!

Camino a Cahuil 7225, Punta de Lobos, Pichilemu, Libertador B. O'Higgins

  • Casas
  • UF 11.447 - EN VENTA
Cargando mapa...

Contáctanos

Descripción

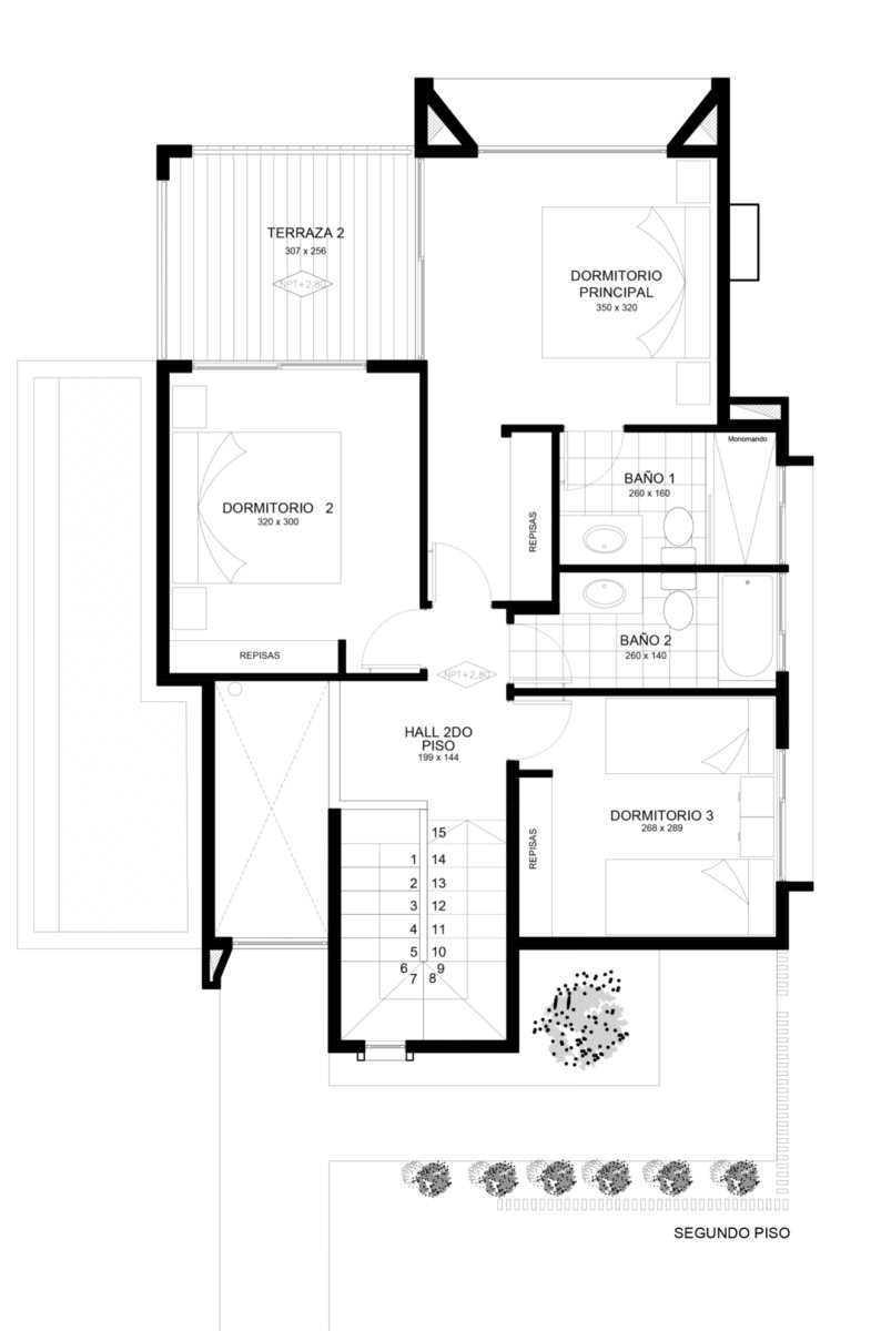
Proyecto de conservación de especies endémicas del lugar con invernadero, protección y fortalecimiento. Primera línea borde playa, sistema solar fotovoltaico conectado a Net Metering para iluminación de espacios comunes, piscina con sistema solar para aumento de temperatura. 1 Pump Track, 2 piscinas, jardin fotovoltaico, 2 saunas, sala de ejercicios, 5 hectáreas de áreas verdes, punto de carga para autos eléctricos. Condominio de 80 casas 160 M2 totales 4 Dormitorios | 3 Baños superficie interior 119m2 aprox terrazas 41m2 aprox. *Ventanas termo panel con marco de PVC * Revestimiento porcelanato en baños y logia * Piso de madera en living, comedor, cocina y dormitorios * Muros revestidos con madera en living, comedor y cocina * Muros pintados en dormitorios. * Cocina equipada con horno, campana y encimera. * Cubierta de cocina, vanitorios, baños y closet en madera natural de la zona. * Baño principal equipado con ducha tipo shower * Cortinas roller * Cubierta de techo con doble membrana asfáltica * Estufa a leña doble combustión * Ducha exterior * Rack para tablas de surf * Logia independiente con calefont interior

Detalles

Código KP460614
Categoría Casas
Estado Activa
Ubicación Piunta De Lobos
Barrio Punta de Lobos
Comuna/Ciudad Pichilemu, Libertador B. O'Higgins
Tipo de operación En venta
Apto credito
Ambientes 10
Dormitorios 4
Baños 3
Estacionamientos 4
Piso 2
Pisos en el edificio 2
Mts totales (mt²) 100.00
Mts cubiertos (mt²) 119
Mts no cubiertos (mt²) 2400
Tamaño terreno (mt²) 2440
Ancho terreno (mts) 300.00
Largo terreno (mts) 350
Año de construcción 2025
Gastos comunes uf 0.00
Nueva construcción / A estrenar 1
17 Visitas al momento